Hôtel de l’imprimerie – Paris 20°

Hôtel

down
Paris 20°

+ informations

down

Le 4 rue de la Cour des Noues s’ouvre dans l’axe de la rue Leuck Mathieu, offrant des vues profondes dans le tissu urbain vallonné du 20° arrondissement.
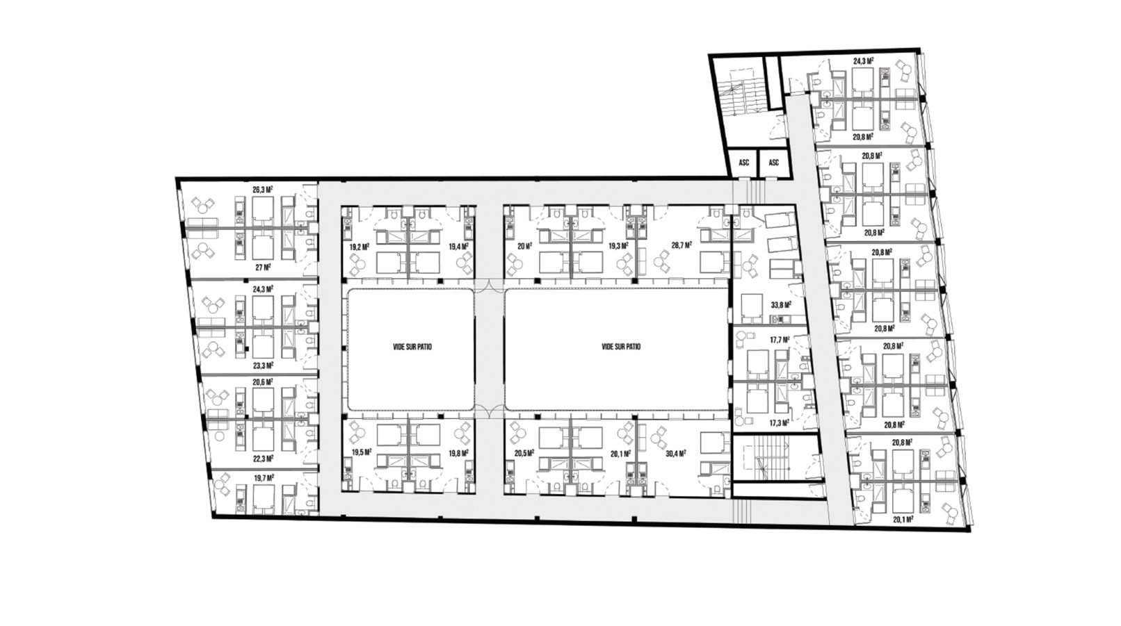
Le projet s’appuie sur la conservation de la halle, témoin du passé industriel du quartier. Elle est complétée d’une extension sur rue, le tout pensé réversible.
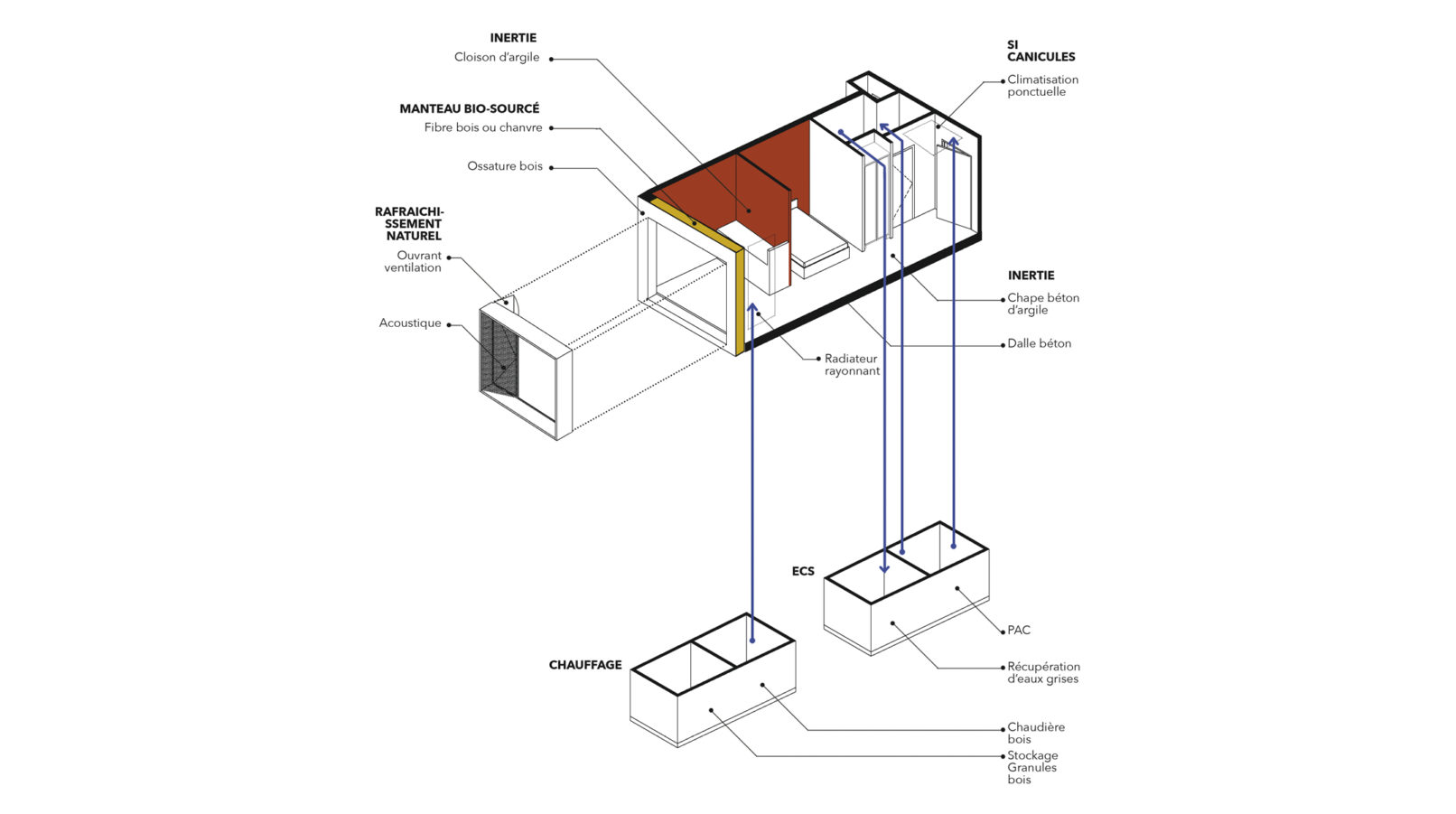
L’enjeu bioclimatique se traduit ici dans la pertinence de choix des matériaux et techniques adaptés à la réhabilitation de la halle et à l’extension.
L’été, le patio fonctionne comme un volume de fraicheur au bénéfice des résidents. Côté rue, des baffles acoustiques intégrées dans l’encadrement de la boite vitrée de la chambre, garantissent un rafraîchissement naturel, passif au bénéfice de la frugalité énergétique.

MAÎTRE D’OUVRAGECofim
Surface4 700 m2
ÉTATConcours 2019