Schwerin courthouse

Equipment

down
Schwerin (Allemagne)

+ informations

down

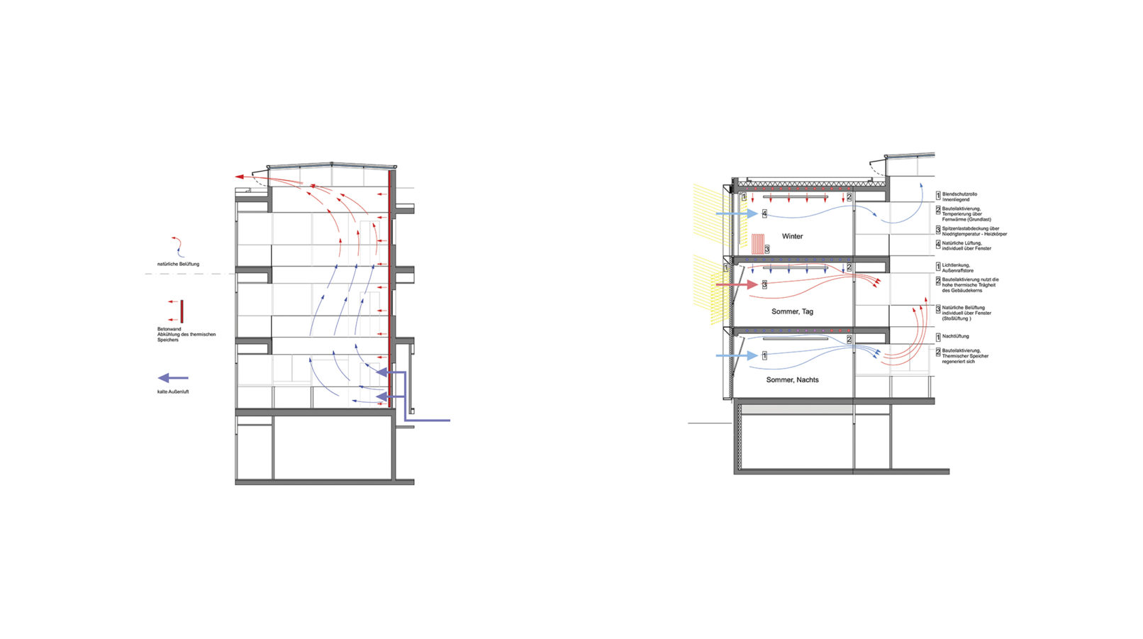
Restructuring – extension of the Schwerin courthouse, now also comprising a prison and a documentation center.
The existing building, where the courtrooms are mainly located, is restructured as lightly as possible while two extensions are built on either side, in strict alignment, ensuring the urban continuity of the streets.
The unitary and symmetrical facades reflect the image of equity and public building service. These extensions spare the two “Gardens of Memory” on either side of the preserved prison. The offices and the library take part around a large glazed atrium giving all the light to the pavilions.

CLIENTFederal State of Mecklenburg-Vorpommern
Surface11,400 m2
STATECompetition 2016