Hotel – Paris 18 °

Planning

down
Paris 18°

+ informations

down

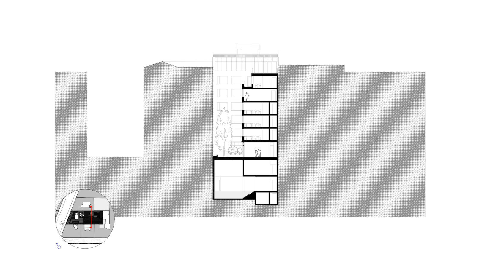
The purpose of the project is to fill the current void by reconstituting the urban front of the street with an R + 6 facade in alignment with the neighboring buildings.

The ground floor is largely glazed in the extension of neighboring shops. This street base gives access to early childhood equipment on the north side and to a hotel residence on the south side. In dialogue with the brick building that faces it (93 rue Duhesme), the upper facade of the project consists of a massive brick cladding from R + 1 to R + 5 with wood joinery which contributes to the rustic character that the ‘we find in this district forming a village in the city. A largely glazed attic crowns the facade.

CLIENTArthenco
MISSIONComplete
WORK AMOUNT€ 6m excl.
SURFACE2,550 m2
STATUSIn progress