Village by CA

Tertiaire
Équipement
Patrimoine

down
Lille

+ informations

down

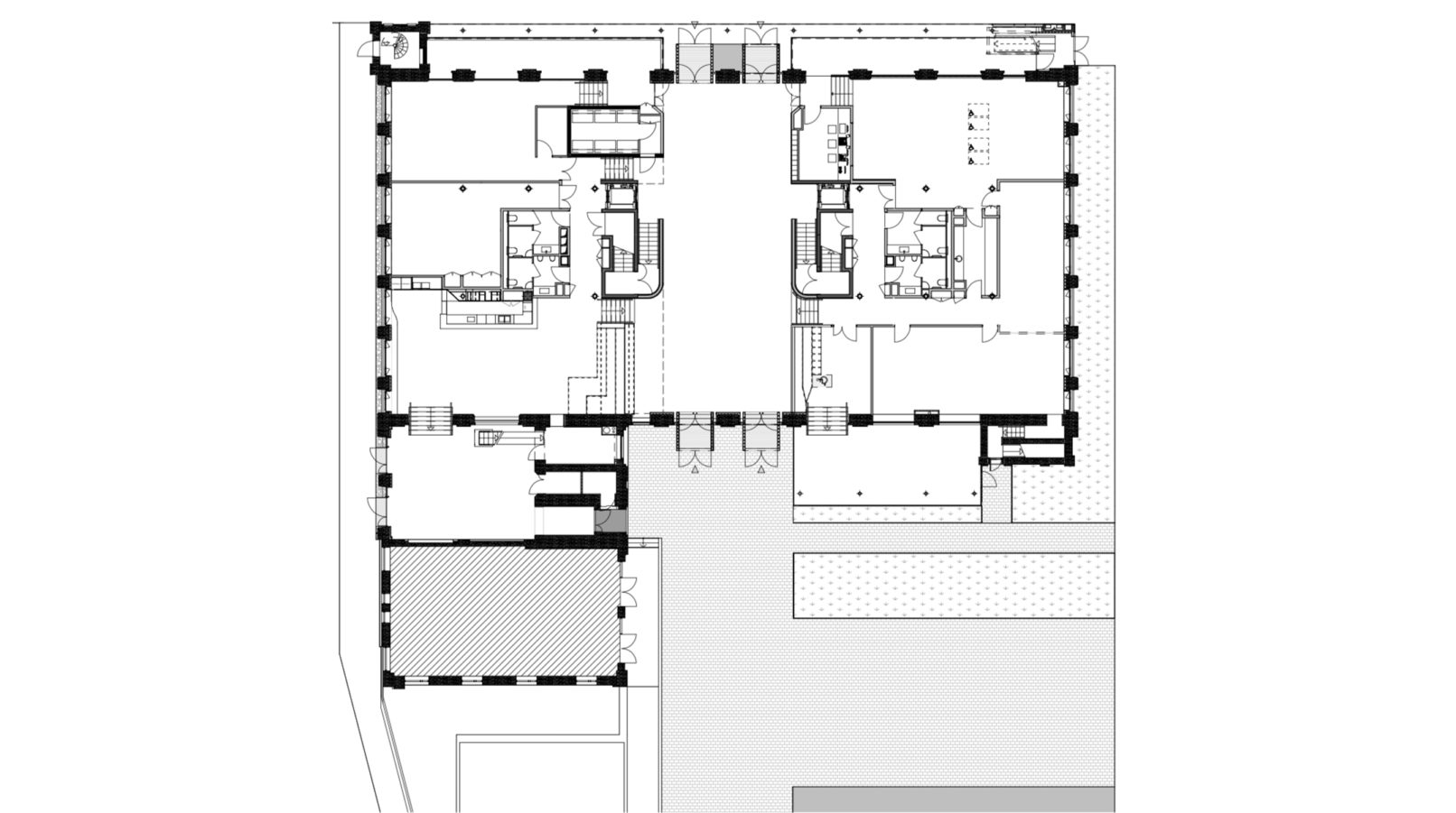
Reconversion du bâtiment F, ancienne retorderie sur le site d’Euratechnologies à Lille, continuité urbaine entre le bâtiment Le Blan – Lafont et futur Forum des Innovation,  pour transformation en un immeuble de bureaux intelligents, principalement dédié au développement des jeunes entreprises dans l’environnement de la net economy.

Les extensions des années 90 sont démolies pour rétablir l’intégrité des façades en briques, les façades Est et Ouest sontétendues pour créer une extension transformant l’identité nouvelle du bâtiment, unifiant le sol public, urbain et partageable entre tous.

Photos : ©Sergio Grazia

MAÎTRE D’OUVRAGEFoncière de l'Erable (Crédit Agricole Nord de France)
MISSIONComplète
MONTANT TRAVAUX7,85 M€ HT
SURFACE4 650 m2
ÉTATLivraison 2020
CERTIFICATIONSBBC Rénovation
PARTENAIRESBE TCE ET ECONOMISTE SAS Mizrahi