Siège de la CPAM de Bourg-en-Bresse

Tertiaire
Équipement

down
Bourg-en-Bresse

+ informations

down

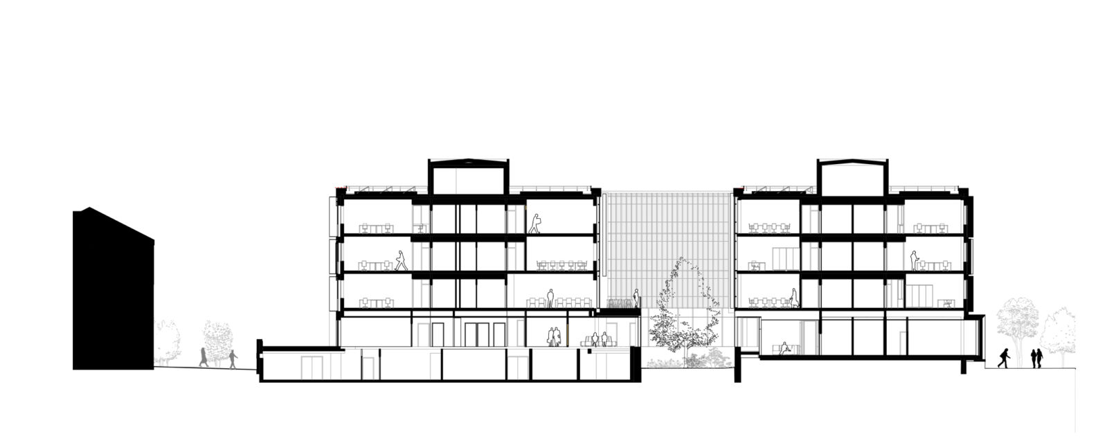
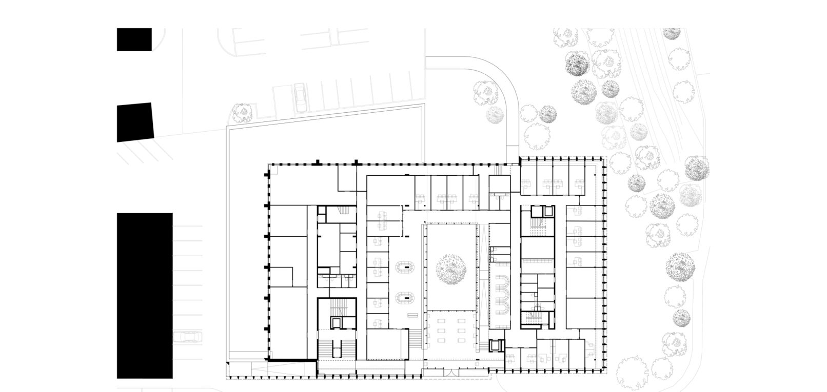
La restructuration et l’extension du siège de la CPAM de Bourg-en-Bresse est l’occasion de redéfinir l’image de cette institution publique essentielle. Le projet propose une alliance harmonieuse entre le bâtiment existant et une extension contemporaine, créant une nouvelle entité architecturale cohérente. L’ensemble s’articule autour de trois axes majeurs :

– Un socle institutionnel unifié affirmant la présence du service public ;

– Une façade au design contemporain exprimant la permanence et la stabilité de l’institution ;

– Un aménagement intérieur fonctionnel qui permet de s’orienter facilement dans un environnement serein et bienveillant autour d’un jardin central.

L’accueil du public a été repensé pour offrir des espaces plus conviviaux et accessibles. Le projet intègre également une forte dimension environnementale, notamment par la restitution d’importantes surfaces perméables et la création d’une connexion naturelle avec les berges de la Reyssouze.

Le bâtiment des années 70 bénéficie d’une rénovation complète : mise aux normes thermiques et accessibilité, renforcement de la structure béton et nouvelle enveloppe performante.L’extension combine béton et bois, privilégiant des matériaux durables et écologiques : béton bas carbone, bois certifié, menuiseries isolantes et isolation biosourcée. L’ensemble privilégie des matériaux nobles : pierre en soubassement, bardage bois en façade et menuiseries aluminium anodisé, alliant cohérence esthétique et durabilité.

MAÎTRE D’OUVRAGECPAM de l’Ain
MISSIONConception
MONTANT TRAVAUX11,86 M€
SURFACE6 466 m2 SP
ÉTATConcours 2023
DÉMARCHE ENVIRONNEMENTALERE2020 - label Effinergie pour le bâtiment réhabilité