Restructuration et extension du Théâtre Rutebeuf

Équipement
Patrimoine
Culture

down
Clichy-la-Garenne

+ informations

down

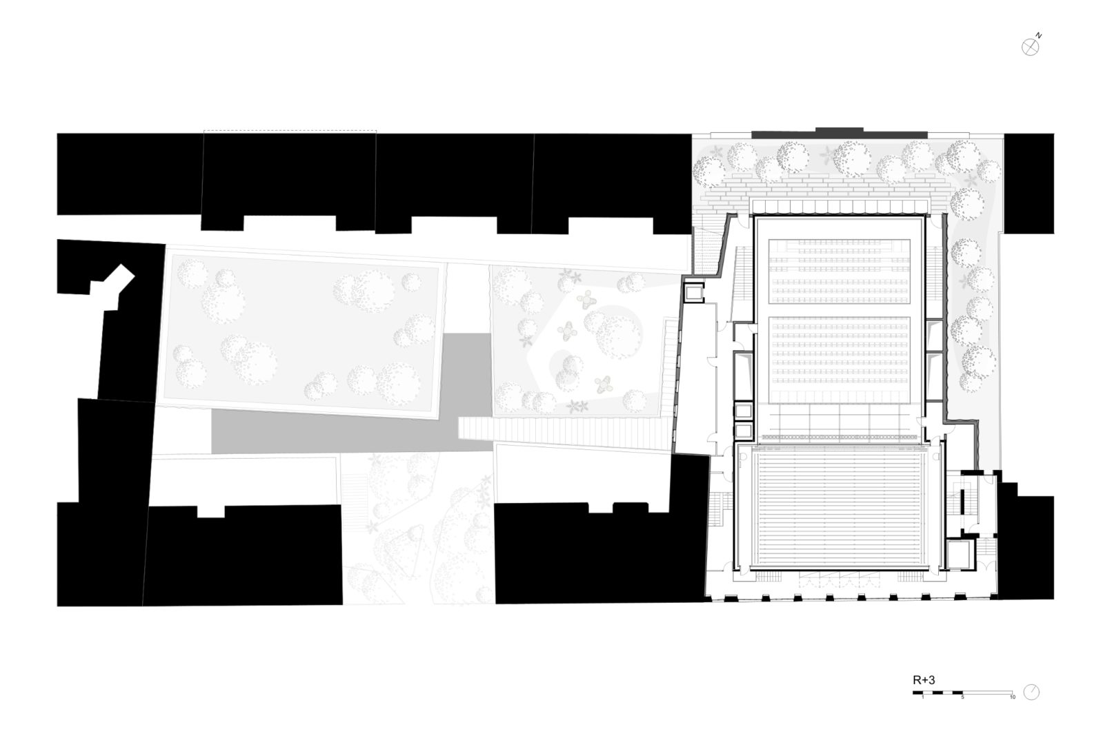
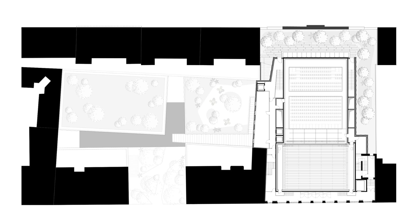
À Clichy-la-Garenne, le projet de transformation du Théâtre Rutebeuf prend appui sur la façade classée de l’édifice existant pour déployer, en cœur d’îlot, une extension traversante structurée autour d’un triptyque scénique : grande salle entièrement repensée, black box modulable, salle de répétition ouverte sur le jardin.

L’intervention propose une reconfiguration complète de l’équipement, articulée entre patrimoine et création contemporaine, dans une composition urbaine sobre et poreuse. Depuis la rue, un hall traversant distribue les flux vers les nouvelles salles. À l’arrière, un belvédère suspendu offre une respiration végétale en surplomb du tissu dense, prolongeant la matérialité de la ville par une résille cuivrée filtrant les émergences techniques.

La mise en œuvre privilégie des dispositifs environnementaux passifs (inertie thermique, ventilation naturelle) et une organisation compacte, garantissant un haut niveau de performance. L’architecture s’inscrit dans la continuité du lieu en révélant les usages à venir dans le respect du déjà-là.

MAÎTRE D’OUVRAGEVille de Clichy-la-Garenne
MISSIONComplète + DIA
MONTANT TRAVAUX20 M€ HT
SURFACE3 200 m2 SU
ÉTATConcours
PARTENAIRESSCENARCHIE - SAS MIZRAHI - ETAMINE - ITA INGENIERIE - CLARITY - CL DESIGN
DÉMARCHE ENVIRONNEMENTALEDécret tertiaire 2030 (-40%)