Restructuration du groupe scolaire Joséphine Baker

Enseignement
Équipement
Patrimoine

down
Dijon

+ informations

down

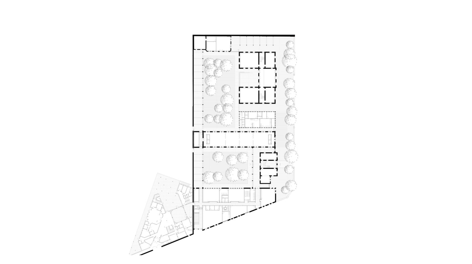
Dans un quartier en mutation à Dijon, le groupe scolaire Joséphine Baker faisait face à un fonctionnement éclaté, un déficit de lisibilité et une relation incertaine à son contexte. Le projet engage une restructuration profonde, qui conserve l’essentiel du bâti tout en en transformant l’usage, l’image et la capacité à accueillir.

L’intervention repose sur une recomposition précise : une nouvelle entrée réoriente l’établissement vers la ville ; une extension discrète vient articuler les entités maternelle et élémentaire autour d’un préau central ; les flux sont clarifiés, les circulations reconnectées, les espaces pédagogiques ouverts sur la cour.

L’écriture architecturale prolonge les logiques existantes sans les figer. Les volumes ajoutés, en ossature bois et vêtus de terre cuite claire, s’inscrivent avec justesse dans le site. L’ensemble revendique une sobriété constructive et un haut niveau d’exigence environnementale : matériaux biosourcés, confort d’été passif, réemploi, désimperméabilisation des sols.

Le projet ne cherche pas l’effet. Il affirme une manière d’intervenir sur l’école comme lieu du quotidien, du lien, et de la transformation silencieuse du quartier.

MAÎTRE D’OUVRAGEVille de Dijon
MISSIONComplète + DIA + OPC + SSI + Signalétique + Assistance MO co-conception / usagers
MONTANT TRAVAUX8,10 M€ HT
SURFACE2 500 m2 SP
ÉTATConcours non lauréat
PARTENAIRESSTERENN ARCHITECTURE (Patrimoine) - SAS MIZRAHI - EODD - ALTERNATIVE - CLIC SAS - ATELIERS 59 - HOMM
DÉMARCHE ENVIRONNEMENTALERT2012 (rénovation) - RE2020 (neuf) - Référentiel HQE Bâtiment Durable