Réinventer Paris 3 – Transformation du Garage Passy

Tertiaire
Logement

down
Paris 16°

+ informations

down

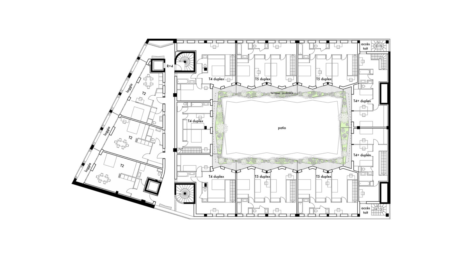
Le projet de transformation du Grand Garage de Passy, situé dans le 16ème arrondissement de Paris, s’inscrit dans le cadre du concours Réinventer Paris 3. Archétype de la révolution automobile du début du XIXème siècle, le bâtiment est transformé en multiprogramme.

Le projet conserve et met en valeur la structure existante tout en créant un dialogue harmonieux entre patrimoine industriel et enjeux contemporains. La programmation s’articule autour de trois entités : un socle commercial, un plateau de co-working moderne, et des logements familiaux aux étages supérieurs.

L’approche environnementale est au cœur du projet avec l’utilisation de matériaux biosourcés et locaux comme le béton de chanvre pour l’enveloppe, assurant une régulation thermique naturelle. Les terrasses-jardinières en quinconce créent un paysage vertical vivant, offrant des espaces extérieurs privatifs tout en favorisant la biodiversité urbaine.

Point culminant du projet, la « place du village » aménagée en toiture devient un espace partagé favorisant les rencontres entre habitants. Cette transformation exemplaire démontre comment l’architecture peut répondre aux enjeux contemporains de la ville durable, en alliant mixité programmatique, performance environnementale et qualité de vie.

MAÎTRE D’OUVRAGESCCV PARIS 19 RUE DE PASSY
MISSIONConception
MONTANT TRAVAUX13,74 M€
SURFACE5 720 m2 SP
ÉTATConcours 2022
DÉMARCHE ENVIRONNEMENTALEBiodiverCity, BBCA Rénovation et profil bas carbone du label NF Habitat HQE Rénovation - RE2020 - IC-8%