Réhabilitation d’un ancien hôpital en un complexe touristique et tertiaire

Tertiaire
Hôtel
Patrimoine

down
VESOUL

+ informations

down

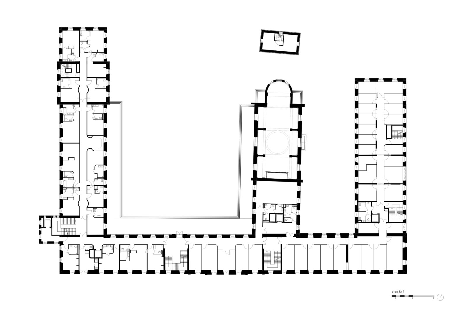
Ancien couvent des Capucins devenu hôpital, le site Paul Morel constitue une figure urbaine structurante dans le paysage de Vesoul. Sa position dominante, son implantation en peigne et la richesse de ses strates bâties en font un lieu à la fois patrimonial et stratégique. Le projet Castel Vesulium le transforme en un programme hybride : hôtel 4 étoiles, restaurant, centre d’affaires, spa, et bureaux, dans une démarche qui conjugue restitution, réinterprétation et usages contemporains.

La composition en « E », héritée de l’histoire hospitalière du lieu, est conservée et clarifiée. À l’ouest, la cour d’honneur retrouve son dessin régulier, sobre et minéral, réaffirmant l’adresse et la symétrie d’origine. À l’est, une seconde cour s’ouvre vers les extensions et le jardin suspendu, réactivant la relation au paysage.

Une surélévation ponctuelle vient coiffer l’une des ailes pour répondre aux besoins programmatiques. Son écriture contemporaine, en retrait des lignes existantes, prolonge l’histoire constructive du lieu sans mimétisme. Elle redonne équilibre et lisibilité à l’ensemble, tout en respectant la silhouette patrimoniale.

Les qualités d’inertie, d’épaisseur et de spatialité du bâti sont mises à profit dans une réhabilitation sobre, ancrée, sans excès. Les éléments historiques – escaliers, voûtes, menuiseries, murs de refend – sont restaurés avec attention et intégrés à une nouvelle économie d’usages.

MAÎTRE D’OUVRAGEGroupe Associatif Handy'Up
ASSISTANT À LA MAÎTRISE D'OUVRAGESEDIA
MISSIONComplète + DIA + EXE + OPC + SSI + Études énergétiques QEB / STD
MONTANT TRAVAUX15 M€ HT
SURFACE7 000 m2 SP
ÉTATConcours
PARTENAIRESCHAMOIN MELSENS, Architecte du patrimoine - PARENTHESE - CAPEM INGENIERIE - SOLARES BAUEN - CETEC - CLIC - META
DÉMARCHE ENVIRONNEMENTALEBBC Effinergie Rénovation - Décret tertiaire seuil 2050