Pôle culturel, Théâtre et Conservatoire de musique

Enseignement
Culture

down
Asnières-sur-Seine

+ informations

down

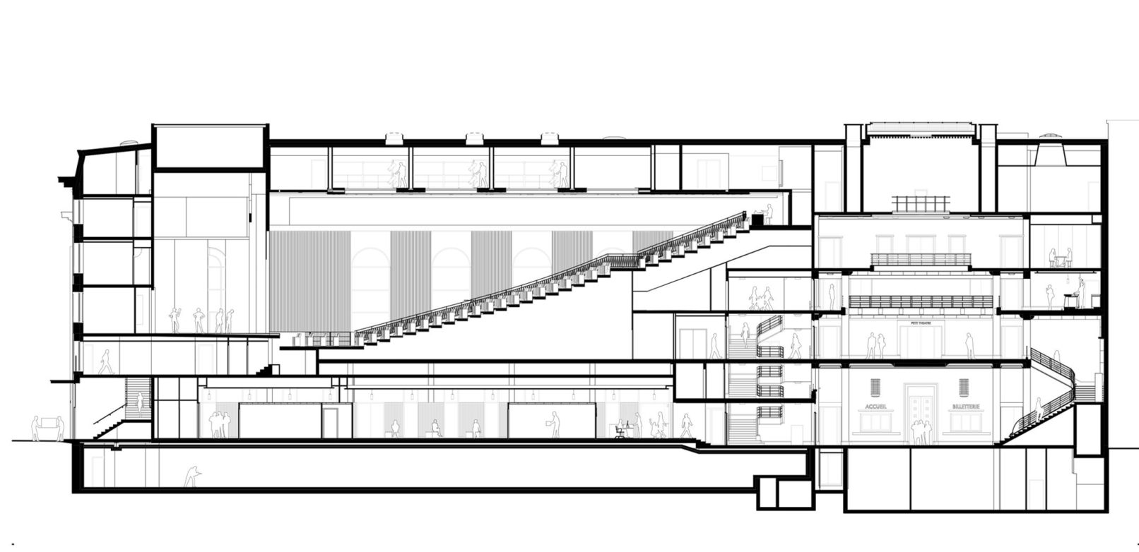
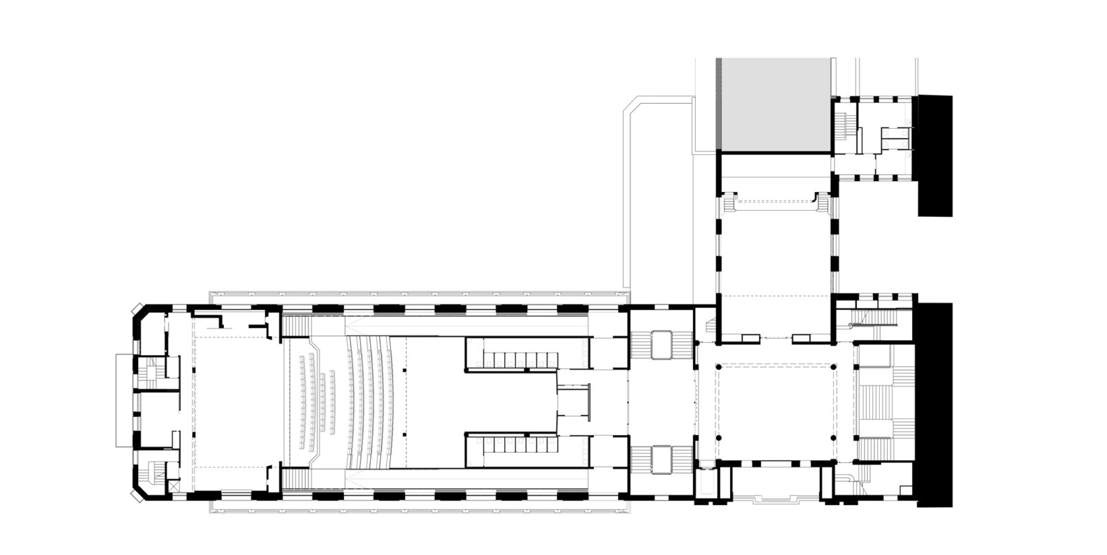
Le nouveau pôle culturel d’Asnières-sur Seine, fruit d’une vision ambitieuse, incarne la métamorphose d’un édifice administratif en un vivier culturel dynamique. Ce lieu d’exception se veut le creuset d’une convergence artistique, alliant musique, danse et théâtre, pour des publics de tous âges et niveaux. Le bâtiment existant, témoignant d’une conservation remarquable, constitue le point de départ de cette transformation. Chaque intervention vise à honorer l’intégrité de la structure originelle tout en la dotant de commodités contemporaines. Une attention particulière est portée à l’isolation thermique et à la qualité de l’air, garantissant une efficacité énergétique optimale.

Le projet prévoit la reconversion du pôle administratif en un conservatoire de musique novateur, la rénovation complète du Théâtre Armande Béjart, ainsi que la redéfinition des espaces associatifs pour encourager les échanges et favoriser la synergie créative. L’aménagement acoustique du stand de tir et la mise aux normes de sécurité et d’accessibilité du bâtiment sont également au programme. Un déploiement du chantier en deux phases est orchestré avec minutie afin de réduire les perturbations. Au cœur de cette entreprise, réside la volonté de créer un lieu culturel en phase avec son héritage tout en répondant aux exigences contemporaines.

MAÎTRE D’OUVRAGEVille d'Asnières-sur-Seine
MISSIONComplète
MONTANT TRAVAUX13 M€ HT
SURFACE5 870 m2 SP
ÉTATÉtudes en cours
PARTENAIRESSCENARCHIE - SAS MIZRAHI - CLARITY
DÉMARCHE ENVIRONNEMENTALEDécret tertiaire - Prise en compte RE2020