Palais de Justice

Tertiaire
Équipement
Patrimoine

down
Poitiers

+ informations

down

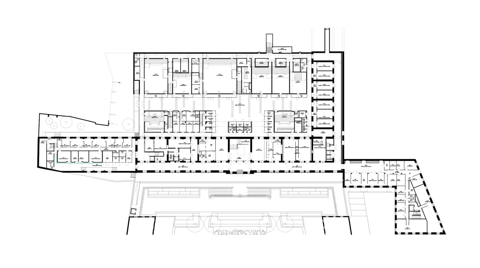
Le Palais de Justice (298 magistrats et fonctionnaires), dans l’ancien lycée Jésuite «Les Feuillants» reconverti, regroupe sur un même site la Cour d’Appel, la Cour d’Assise, le TGI, le TI, le Conseil de Prud’hommes et le Tribunal de Commerce. Le projet s’appuie sur :
– La réhabilitation complète du bâtiment des Feuillants, où l’ensemble des fonctions tertiaires de l’établissement seront implantées.
– La création de l’ensemble des salles d’audience en extension du bâtiment classé. Cet ensemble public réalisé en totale unité de niveau à RdC, dégage les indépendances de flux de circulation indispensables à la sûreté du fonctionnement requis dans un Palais de Justice.

Photos : ©Sergio Grazia.

MAÎTRE D’OUVRAGEMinistère de la Justice représenté par l’APIJ
MISSIONBase + Signalétique + Assistance Mobilier + ACEM
MONTANT TRAVAUX33,47 M€
SURFACE14 300 m2
ÉTATLivraison 2019
PARTENAIRESBE TCE ET ECONOMISTE SAS Mizrahi / ACOUSTICIEN Alternative / INGÉNIERIE DE LA MAINTENANCE ET DES SERVICES Quadrim / PAYSAGISTE SLG Paysage