Oberkampf – 83 logements

Logement

down
Paris 11°

+ informations

down

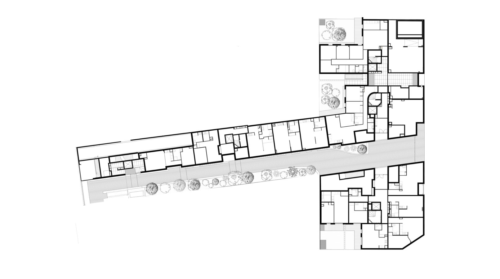
Ce projet de 83 logements sociaux et en accession mixés, en lieu et place d’un ancien garage, est l’occasion unique de créer un  passage public entre la rue Oberkampf et le passage Saint-Pierre Amelot.
L’immeuble sur rue est conservé, réhaussé, pour maintenir intègre la séquence urbaine d’une exceptionnelle continuité.
Sur le passage Chobert, on crée un immeuble d’ateliers dont les façades soutiennent la configuration très végétale de l’espace public créé.
Un dernier imeuble suit le passage Saint-Pierre Amelot, socle, corps et attique pour reconstruire le fragile espace des parcelles usinières du XI° arrondissement.

Photos : ©Sergio Grazia

MAÎTRE D’OUVRAGELinkcity Ile de France, Emerige, Ogic
MISSIONMission complète
MONTANT TRAVAUX16,3 M€ HT
SURFACE5 460 m2 SP
ÉTATLivraison 2021