Notre-Dame-des-Champs

Enseignement
Logement

down
Paris 6°

+ informations

down

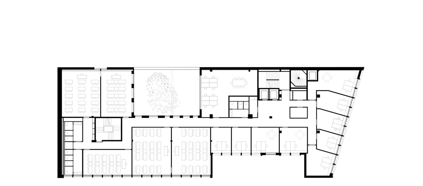
Au cœur du 6e arrondissement de Paris, l’ancien siège de la MAIF est réhabilité et surélevé pour accueillir un nouveau programme mixte. Le projet consiste en la mutation des surfaces de bureaux en locaux d’enseignement pour l’Université Panthéon-Assas, couronnée par trois niveaux de logements. Cette opération de 3800 m² incarne une approche durable et contextuelle.

Le bâtiment industriel des années 1950, conçu par Jean-Pierre Epron, voit ses qualités structurelles exceptionnelles préservées et valorisées. La réhabilitation crée 3200 m² d’espaces d’enseignement modernes, avec un Learning Center aménagé dans l’ancien parking en sous-sol, des salles de classe modulables et un pôle chercheurs. L’intervention améliore significativement les performances thermiques de l’enveloppe, notamment par le remplacement des menuiseries.

Du R+3 au R+5, une surélévation en structure légère acier-bois vient compléter l’ensemble. Sa matérialité à dominante métallique marque délibérément sa contemporanéité tout en s’appuyant sur la trame existante. Elle abrite quatre logements et un rooftop accessible.

Le projet, livré en septembre 2024, incarne les principes d’une architecture durable : conservation de la structure existante, choix de matériaux pérennes et adaptation aux usages contemporains, tout en préservant la mémoire industrielle du lieu.

MAÎTRE D’OUVRAGEDEMATHIEU BARD IMMOBILIER
MISSIONComplète + SSI + agencement mobilier (enseignement) + décoration d'intérieur (logements)
MONTANT TRAVAUX12,30 M€ HT
SURFACE3 800 m2
ÉTATLivraison 2024
AMOAI ENVIRONNEMENT / META Atelier Acoustique
PARTENAIRESBE TCE ET ECONOMISTE SAS MIZRAHI / ATELIER ALICE TRICON
DÉMARCHE ENVIRONNEMENTALE BREEAMInternational Refurbishment and Fit-out 2015 Education Niveau Very Good