MC93

Patrimoine
Culture

down
Bobigny

+ informations

down

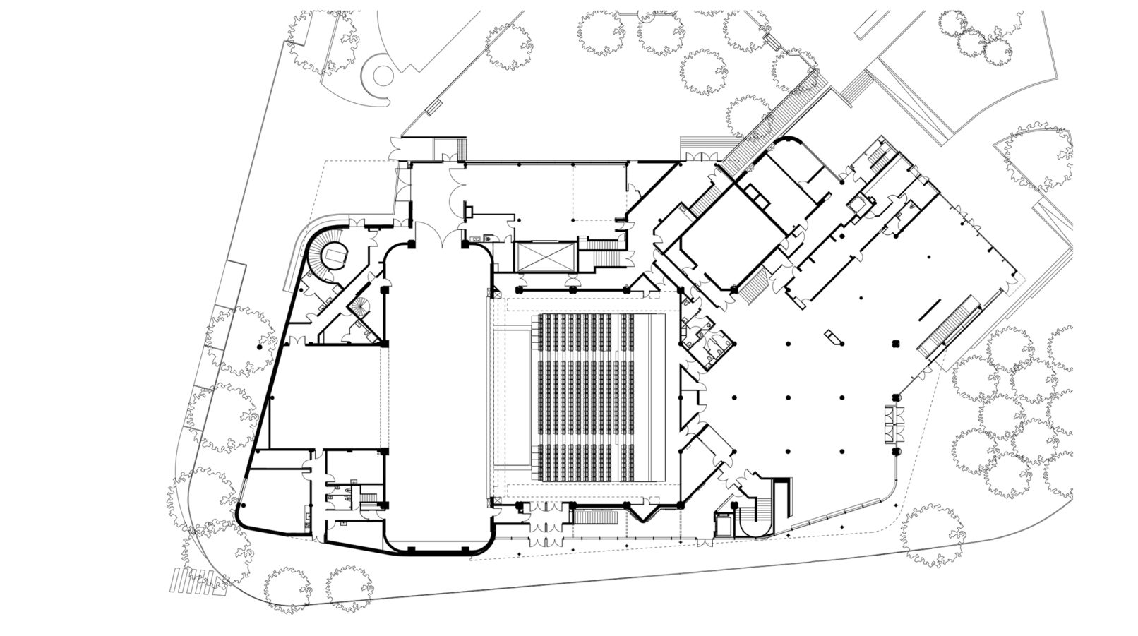
La MC93 est rénovée après 35 ans de création théâtrale, d’action culturelle bouillonnante, de rayonnement sur la ville.
Le bâtiment change d’image par un réhabillage isolant complet. L’accueil du public est transformé avec la mise aux normes PMR de l’établissement et le réaménagement de la salle EFREMOV de 800 places. Sont également créés un studio 50 places, une deuxième salle modulable de 280 places qui démultiplie les formes de spectacles offerts. Le hall s’ouvre sur la ville, agrandi, avec un restaurant et une librairie permanents.

L’activité scénique de la MC93 est renforcée par l’apparition d’une très grande salle de répétition, un atelier de costumes qui confirment la vocation de création de cette scène nationale.

Photos : ©Sergio Grazia

MAÎTRE D’OUVRAGEVille de Bobigny
MISSIONMission complète + Diagnostic + SSI
MONTANT TRAVAUX14,90 M€
SURFACE10 460 m2
ÉTATLivraison 2017
PARTENAIRESSCÉNOGRAPHE Changement à Vue / BE FLUIDES/ELEC ET ECONOMISTE SAS Mizrahi / BE STRUCTURE IGB / ACOUSTICIEN Alternative / RÉSEAUX SCÉNIQUES Astell