Ensemble immobilier de 33 logements – Asnières-sur-Seine

Logement

down
Asnières-sur-Seine

+ informations

down

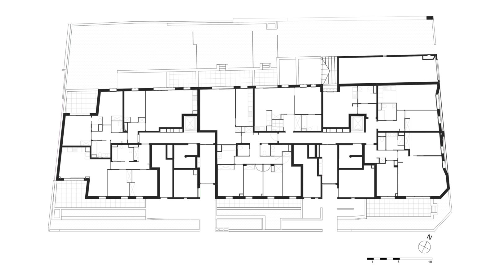
Après démolition de la maison R+1+C existante, construction d’un immeuble R+2+C de 33 logements répartis autour de deux cages d’escalier desservant d’une part les logements sociaux (10) et d’autre part les logements en accession (23), sur un niveau de parking enterré.

Entre le tissu pavillonnaire historique d’Asnières et les immeubles de rapport début du siècle du centre-ville, cette opération installe une échelle intermédiaire à taille humaine.

À l’angle des rues, le volume général est décomposé et exprime trois hôtels particuliers sur des avant-jardins orientés au sud. Une double orientation, des volumes généreux de plus de trois mètres sous toiture, une qualité spatiale et un choix de matériaux dialoguent dans une géométrie sophistiquée d’angle et de biais …

MAÎTRE D’OUVRAGEIcade
MISSIONComplète
MONTANT TRAVAUX4 M€ HT
SURFACE1 870 m2
ÉTATLivraison 2022
PARTENAIRESSAS MIZRAHI - BMC