Construction de l’extension ALCO2

Tertiaire

down
Montpellier

+ informations

down

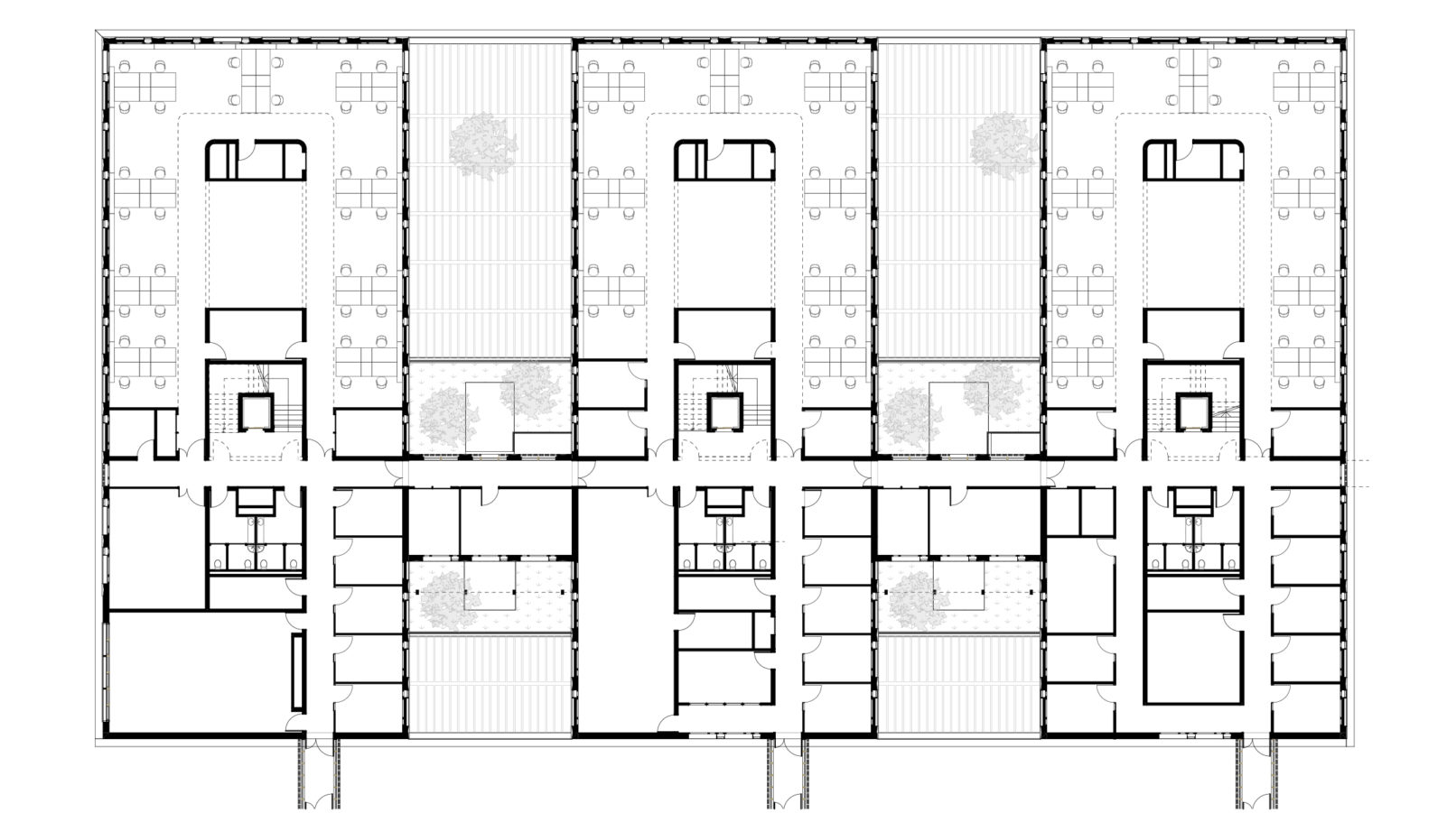
À la lisière nord de Montpellier, le site d’Alco s’étire entre rocades, collines et pins parasols. L’extension du siège du Conseil départemental y prolonge un ensemble administratif existant par trois nouveaux bâtiments tertiaires posés sur un socle de stationnement. Le projet s’inscrit dans la continuité du dispositif en peigne amorcé par l’existant, tout en affirmant une nouvelle frontalité urbaine.

Les gabarits sont repris, les trames poursuivies, mais la matière change : au béton brut du socle répond un enduit rouge profond, vibrant écho à la Ruffe du Haut-Languedoc. L’architecture revendique un ancrage territorial, une tectonique affirmée, sobre et compacte. Une puissante arcature préfabriquée, sculptée dans la masse, soutient les étages supérieurs et dialogue avec les galeries ouvertes du bâtiment voisin. Elle forme un socle habité, accueillant stationnement, services et lisières végétales.

À l’intérieur, les plateaux de travail privilégient la flexibilité, les usages différenciés, les respirations collectives. La lumière naturelle se glisse entre les volets bois et les stores à lames orientables. Inertie thermique, ventilation naturelle nocturne, ces dispositifs passifs forment la grammaire environnementale du projet.

Le bâtiment articule ainsi une continuité urbaine, constructive et institutionnelle. Il affirme une présence sans solennité, s’inscrit dans le paysage sans le dominer, et donne à voir une institution tournée vers son territoire.

MAÎTRE D’OUVRAGEConseil Départemental de l'Hérault
MANDATAIRE MAÎTRISE D'OUVRAGETerritoire 34
MISSIONComplète + EXE partiel + SSI + GDD + BDO accompagnement + SYN + DIME
MONTANT TRAVAUX9,5 M€ HT
SURFACE2 985 m2 SU
ÉTATConcours
PARTENAIRESATELIER AJA (arch.) - ATELIER LADANUM - BETOM - ETAMINE - ATELIER ROUCH
DÉMARCHE ENVIRONNEMENTALEBDO Niveau Or