CONSERVATOIRE À RAYONNEMENT DÉPARTEMENTAL D’ORLÉANS

Enseignement
Patrimoine
Culture

down
Orléans

+ informations

down

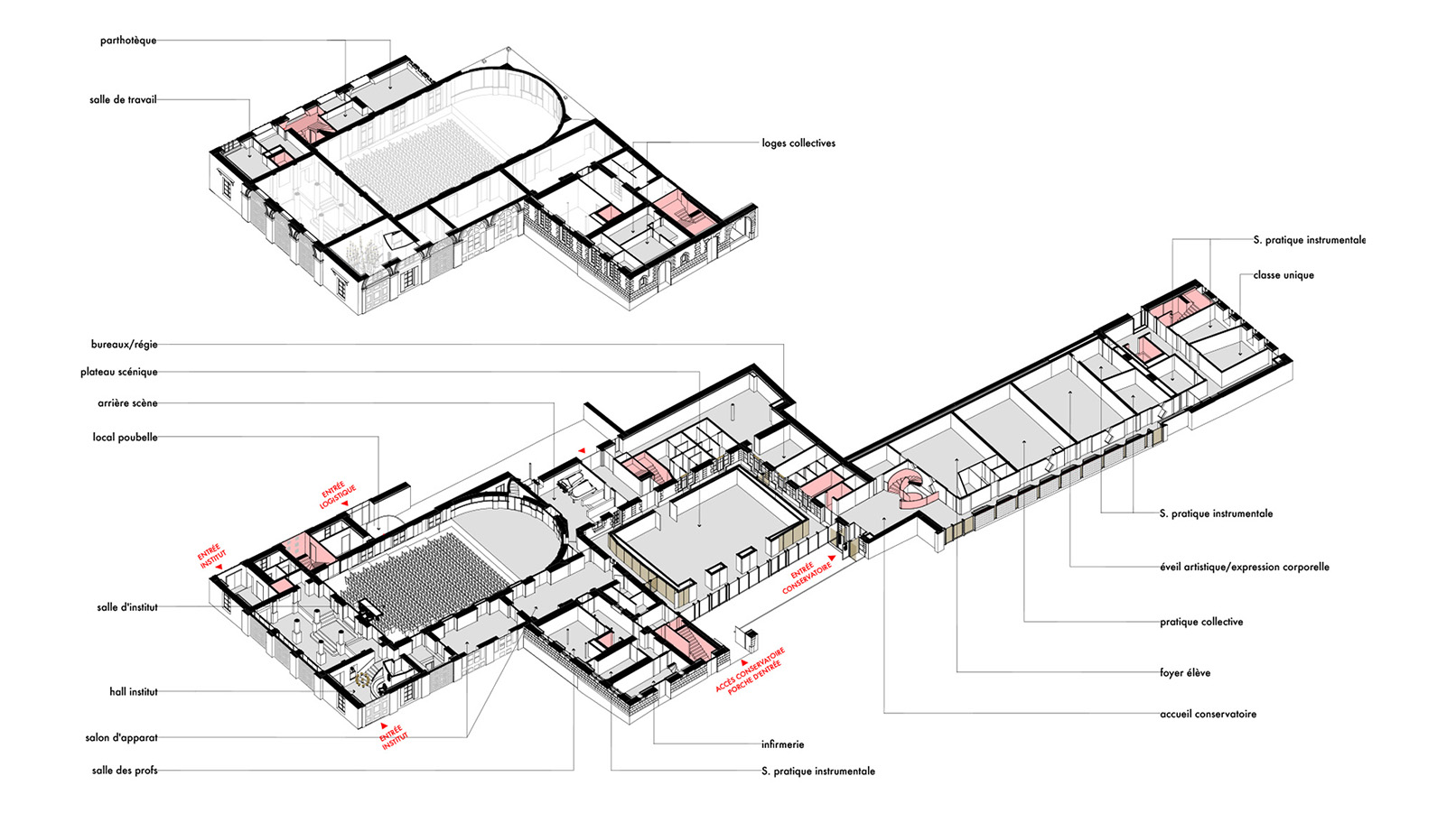
Le projet de restructuration du Conservatoire à Rayonnement Départemental d’Orléans incarne la philosophie du « récit de la continuité ». Situé au cœur historique de la ville, il transforme un ensemble d’entités bâtimentaires emblématiques — certaines datant du XVe siècle — en un lieu d’excellence artistique du XXIe siècle. L’intervention s’étend sur le site historique Sainte-Croix, les anciens locaux de la Caisse d’Epargne (CELC), les locaux de la Police Municipale, ainsi que le jardin de l’Hôtel Groslot et la cour de la Police Municipale qui accueillent deux volumes neufs.

Sur une surface totale de 4500 m², le projet crée des espaces polyvalents et évolutifs, favorisant la transdisciplinarité entre musique, danse et théâtre. Des solutions innovantes, telles que des cloisons acoustiques mobiles, permettent d’adapter les espaces aux besoins changeants tout en préservant l’authenticité historique des lieux. La restructuration allie discrètement patrimoine et haute technologie, créant un environnement entièrement connecté et digitalisé, prêt à accueillir les pratiques artistiques contemporaines.

Cette approche illustre parfaitement l’engagement à tisser un lien continu entre le passé, le présent et l’avenir de la création artistique, tout en répondant aux normes et enjeux d’un bâtiment du XXIe siècle.

MAÎTRE D’OUVRAGEVille d'Orléans
MISSIONComplète + DIAG + SSI + SIGN + Assistance Mobilier + Suivi EM
MONTANT TRAVAUX17,15 M€ HT
SURFACE4 500 m2 SP
ÉTATÉtudes en cours
PARTENAIRESLAGNEAU ARCHITECTES - CARDO ARCHITECTURE ET PAYSAGE - SCENARCHIE - SAS MIZRAHI - CLARITY - 8'18" - ATELIERS 59 - QUADRIM CONSEILS
DÉMARCHE ENVIRONNEMENTALEDécret tertiaire - Décret BACS